0.引言
集中电源控制柜(EPS)、安全出口标志灯、疏散指示标志灯三者组成的消防应急照明系统在我国建筑领域的应用*为广泛,由自带蓄电池的疏散指示标志灯与安全出口标志灯消防应急照明配电箱组成的消防应急照明系统同样广泛应用于民用建筑电气设计。结合实际调研可以发现,传统的消防应急照明系统的应急启动直接受到电池充放电工作正常性影响,而由于相关产品问题往往无法得到及时发现,系统在应用中往往会因故障造成逃生疏散指示盲区,为避免这类问题的出现,正是本文围绕智能消防应急照明系统在民用建筑电气设计中的应用开展具体研究的原因所在。
1.民用建筑电气设计中智能消防应急照明系统的基本应用
1.1传统系统不足分析
围绕两种常用的消防应急照明系统进行分析可以发现,两种系统蓄电池大多仅能够实现持续不超过30min的供电,且其在建筑楼宇内以单体的应急照明灯作为存在形式,这就使得火灾现场的变化无法通过系统得以响应,逃生方向指示也无法基于火灾动态实现实时调整,现场逃生需要因此在很多时候无法得到较好满足。日常检修和维护应急灯存在的滞后现象也需要得到重视,发生火灾时应急标志灯的应急启动属于其主要功能之一,但如果产品电池等方面出现问题,部分应急灯无法正常启动的情况很容易出现,应急疏散指示灯失灵很容易引发严重事故,由此深入了解传统消防应急照明系统存在的不足。
1.2智能系统应用路径
相较于传统消防应急照明系统,智能消防应急照明系统可*避免维护检修应急照明灯环节出现问题,且能够将报警系统与应急照明灯进行联动,提供火灾发生时的动态逃生方向指引。一般来说,智能消防应急照明系统由光流子母灯、可调向疏散指示标志灯、安全出口灯、区域汇集器、集中控制应急灯主机、火灾探测器组成,火灾报警系统与智能应急照明系统可实现联动,在确认火灾信号后,消防控制室可及时自动点亮应急照明灯具,并通过编程控制每个现场的疏散指示灯和应急照明灯,实现以光流形式的疏散指示,逃生路径的动态指示可由此实现,逃生人员在火灾发生后的烟雾环境下可及时、准确、清洗的判断逃生方向。一般采用PC机作为智能消防应急照明系统的主控机,采用单片机智能控制终端的应急灯具,为实现一队多通信控制巡检功能,系统需采用总线设计,并保证不同类型的灯具终端能够通过同一总线系统实现挂接,虚拟分区内的应急照明灯熄灭与电量通过编程控制,且系统同时具备功能和应急测试功能。为保证智能应急照明系统的实用性,需保证建筑物内的楼宇管理系统能够与智能应急照明系统实现较好兼容,日常管理工作的便利化程度将大幅提升,应急照明的可靠性也能够得到更好保证。
在智能消防应急照明系统的具体应用中.需遵循一定逃生逻辑,1)即需远离着火点设置指示方向:2)着火点以上楼层的疏散应避免选择着火层火灾发生的临近出口:3)应通过灯光闪烁及声音提示提醒逃生人员到达或接近安全出口,以此保证正确的疏散导向指示能够传递给现场疏散人员,避免延误逃生时机、错过安全出口等问题。
1.3具体应用路径
为更直观展示民用建筑电气设计中智能消防应急照明系统的具体应用,以某商场作为研究对象,该商场由地上三层、地下一层的结构组成,单层建筑面积在3000㎡,因此在建筑电气设计中,针对性采用了智能应急照明系统,并在消防控制室内设置系统的主机,带有语音、频闪、变灯功能的安全出口灯被设置与楼梯口,具备频闪和改恋方向功能的疏散指示标志灯被设置于楼道内,平时不工作且具备闪动和改恋方向功能的地面光流指示灯设置于楼道的主干道。如火灾发生于商场的二层楼道内,火灾信息会*时间发送至消防联动该系统,接收信息后,系统将自动进人应急状态消防应急照明系统由此正式启动。在启动后,智能消防应急照明系统将进入以下工作状态:
(1)在发生火灾的商场本层,地面光流指示灯将自动启动,朝火警点的反方向,地面光流指示灯会不断闪动,安全出口标志灯也将同时自动启动,并进人频闪状态,火警点位置的灯处于关闭状态,同时系统会通过安全出口标志灯进行语音广播。疏散指示标志灯启也会司时进入启动状态,指示方向将基于火情改动,进入频闪状态,并指向火警点的反方向。
(2)在发生火灾的商场上一层,智能消防应急照明系统会基于具体的火势、烟雾走势进行控制。在研究案例中,楼道内为火警发生点,烟雾的走向为右向,由于烟雾些延区处于火灾层上一层的楼梯下面,因此火灾层右边的安全出口标志灯与地面光流指示灯就近指引发生火灾的商场上一层安全出口标志灯关闭右边的地面光流指示灯显示反向。
(3)对于发生火灾的商场地下层及火灾层的下一层,智能消防应急照明系统按照默认方式启动地面光流指示灯、安全出口标志灯、疏散指示标志灯,就近指引,语音功能也会同时启动。
2.智能消防应急照明系统的具体设计

为提升研究的实践价值,本节将结合实例简单介绍智能消防应急照明系统的具体设计研究的系统与上文提及的系统存在一定不同由智能操纵主机、电池、*控制主站、电源和监控形式的照明灯组成,具体设计如图1所示。
基于图1进行分析可以发现,该系统的智能*监控主站采用八根通信线的方式,共连接设备256台,系统控制、外部通信、消防联动可由此实现,智能*电池主站针对性设置有地址码,电源方式的确定可基于*监控主机的基础实现,采用380V的三相四线直流输入电源,直流216V或交流220V的输出电压:智能控制器分机采用混合型分机,设计需*关注细节性问题,电源和监控形式的照明灯同样采用上文提及的地面光流指示灯、安全出口标志灯、疏散指示标志灯。设计还采用了ZigBee协调器节点,其能够实现重新分析和汇总智能应急照明灯的数据,配合网络节点确定灯具位置,即可实时了解火灾情况,这一设计如图2所示。


系统硬件模块可细分为三部分,包括智能应急照明系统监控级、智能应急照明系统现场控制级、协调器,分别采用工业控制计算机(研华610)、Zigbee模块(YL-5168D)、ZigBee芯片(CC2430)。在智能应急照明系统的现场控制器设计中,采用图3所示设计,控制器节点程序流程图如图4所示。为实现智能疏散功能,智能应急照明系统在监控端设计中采用蚁群算法,配合智能应急照明系统的工作状态测试和丢包率测试,可确定该系统能够满足民用建筑需要。
3.安科瑞消防应急照明和疏散指示系统选型方案
3.1系统概述
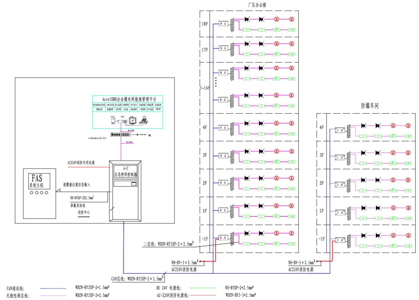
消防应急照明和疏散指示系统主要由应急照明控制器、消防应急照明集中电源或应急照明配电箱、消防应急灯具等几部分组成。符合现行的行业规范,可以满足与AcrelEMS企业微电网管理云平台或火灾自动报警系统等进行数据交换和共享。
该系统配合火灾报警控制器使用时,在平时对系统内的设备进行实时的监视和控制,便于日常的管理和维护,保障系统的稳定运行。基于此保证在火灾发生时,能够准确改变消防应急标志灯具的指示方向,点亮消防应急照明灯,帮助建筑内的人群选择逃生疏散路线,指引安全的逃生方向,保障群众的人身安全,为各类用户担心的安全问题解决了后顾之忧。
3.2应用场所
适用于住宅、酒店、办公楼、商城综合体、医院、隧道管廊、轨道交通、地库、仓库、工厂等各行业的消防应急照明和疏散指示系统。
3.3系统结构

3.4系统功能
3.4.1系统运行主界面
包含工具栏、平面展示、图层列表、状态栏,可以直观的查看监控设备的运行状态,并根据状态栏的现实内容直接切换至故障具体位置。

3.4.2灯具配置界面
可以查看所有灯具状态与数量。

3.4.3信息界面
可查看历史操作、故障、事件信息、可按日期进行查询。

3.4.4权限管理界面
主要由应急启动、应急停止与手动火警组成,应急启动与停止用来测试设备应急功能是否正常,手动火警测试再具体着火点下系统的启动情况。

4.结语
综上所述,智能消防应急照明系统在民用建筑电气设计中的应用需关注多方面因素影响。在此基础上,本文涉及的智能系统应用路径、具体应用路径、智能消防应急照明系统的具体设计等内容,则直观展示了智能消防应急照明系统的设计路径。为更好满足民用建筑电气设计需要,针对性的软件设计也需要得到重视,由此即可更好发挥智能消防应急照明系统的应用优势。
参考文献
[1]陆萍.智能消防疏散应急照明系统的分析与应用[J]光源与照明,2019(3:4-7.
[2]朝明.智能消防应急照明系统在民用建筑电气设计中的应用研究[J]居舍2019(19):153.
[3]姜树震.智能应急疏散系统的设计与选型建筑技术开发,2019.46(12):121-122
[4]郑光照.智能消防应急照明系统在民用建筑电气设计中的应用[J]
[5]安科瑞企业微电网设计与应用手册2022.05版.
本文地址: https://www.xsyiq.com/52781.html
网站内容如侵犯了您的权益,请联系我们删除。